건너뛰기 메뉴



입찰 내역

입찰 내역

[입찰공고] 2023년 군포환경관리소 폐열보일러 산세정 공사 소액수의 견적제출 공고

작성자
계약담당자
등록일자
2023년 9월 27일 14시 4분 59초
조회
334

[입찰공고] 2023년 군포환경관리소 폐열보일러 산세정 공사 소액수의 견적제출 공고

공고명 : 2023년 군포환경관리소 폐열보일러 산세정 공사 소액수의 견적제출 공고

조달청 공고번호 : 20230930964-00

  1. PDF 파일 2023년 군포환경관리소 폐열보일러 산세정 공사 소액수의 견적제출 공고문.pdf [ Size : 399.68KB , Down : 515 ] 다운로드
  2. HWP 파일 공사 시방서.hwp [ Size : 207.5KB , Down : 481 ] 다운로드
  3. XLSX 파일 공사 산출내역서(공고용).xlsx [ Size : 1.19MB , Down : 491 ] 다운로드
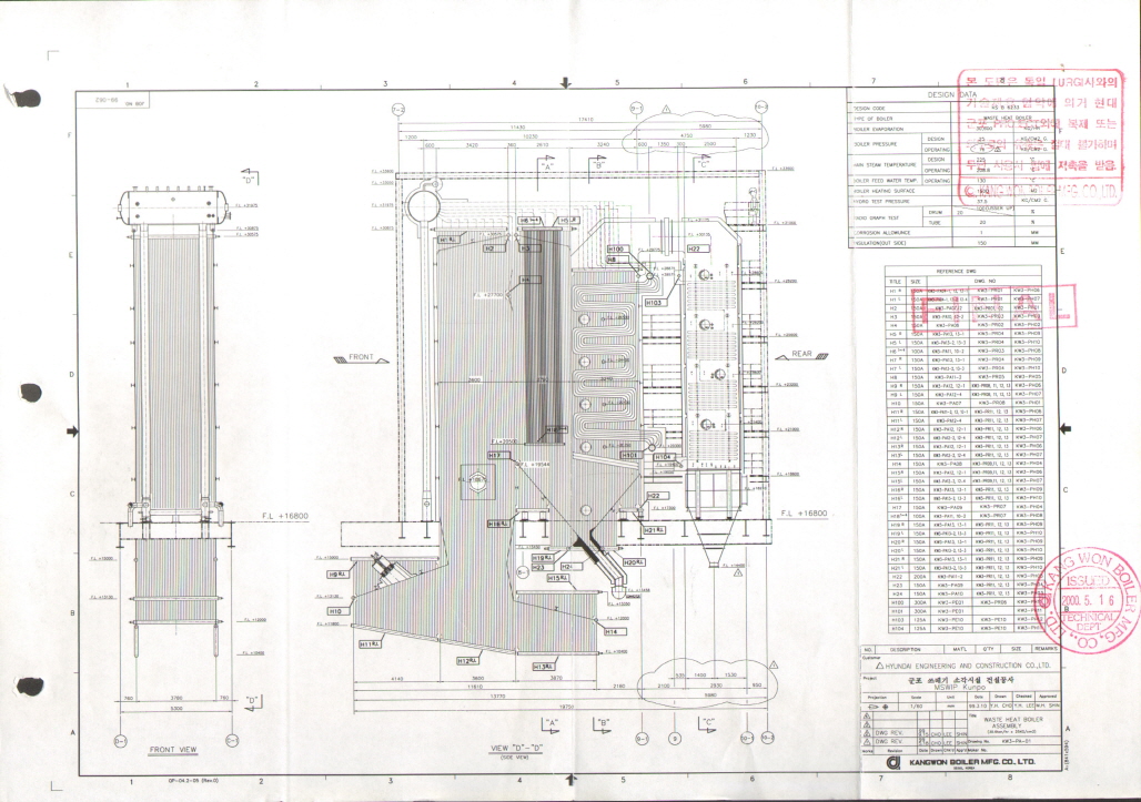
  4. JPG 파일 공사관련 도면.jpg [ Size : 473.49KB , Down : 224 ] 미리보기 다운로드
  5. HWP 파일 공사관련 현장사진.hwp [ Size : 1.28MB , Down : 446 ] 다운로드

목록보기